Capannone in vendita

Talamona, Viale Stelvio
€ 450.000
8 locali 8 locali
609 Mq 609 Mq
4 bagni 4 bagni

Capannone in vendita

Talamona, Viale Stelvio

Descrizione annuncio

TALAMONA - VIA STELVIO 1568:

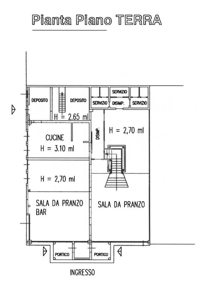
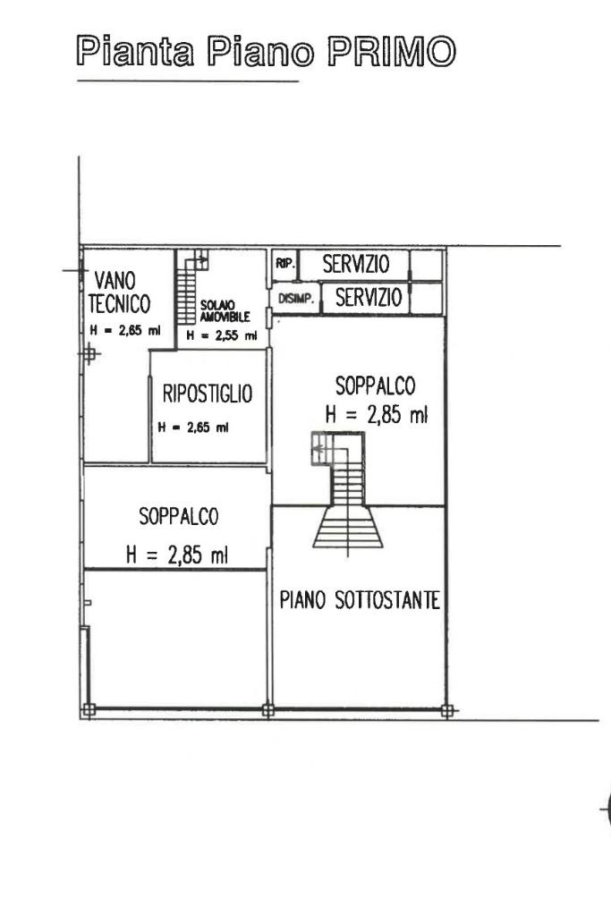
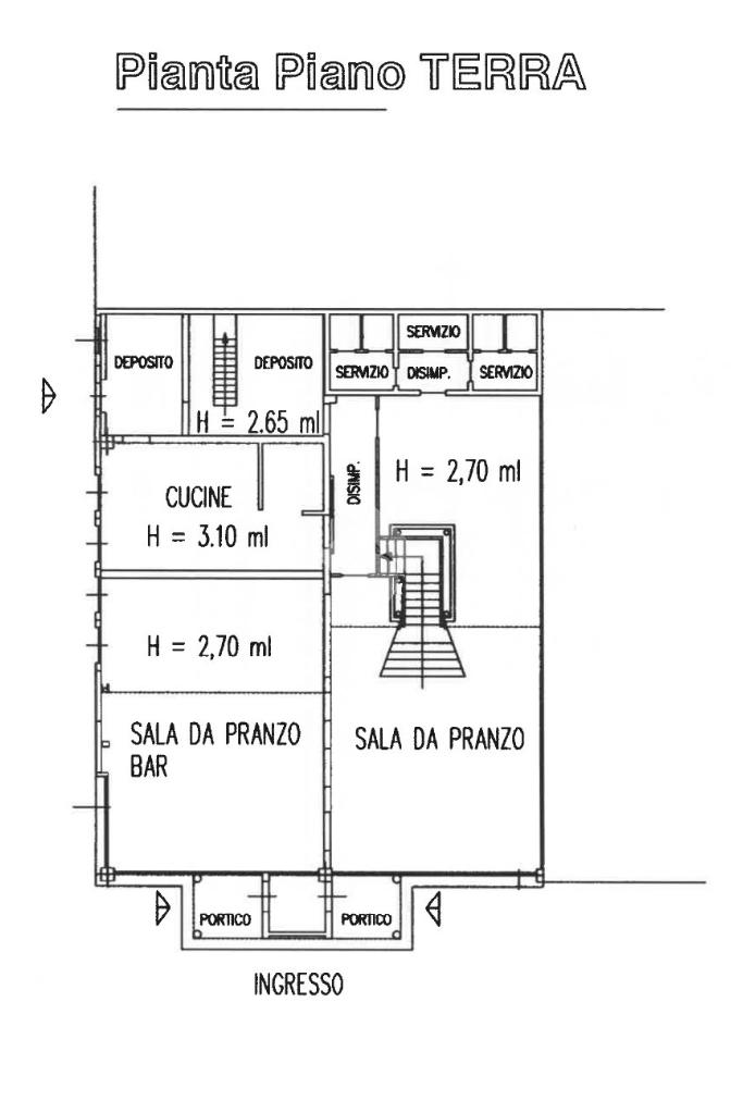
In una zona commerciale ben servita e direttamente affacciata sulla strada principale, proponiamo in vendita un capannone commerciale di circa 609 mq distribuiti su due livelli.

L’immobile è completamente autonomo, privo di spese condominiali e dotato di servizi, con spazi ampi e versatili che si presentano liberi da qualsiasi arredo, pronti per essere adattati alle esigenze della futura attività.

La posizione garantisce ottima visibilità e facilità di accesso, con parcheggi gratuiti disponibili nelle immediate vicinanze, rendendo la soluzione ideale per chi cerca funzionalità e massima esposizione commerciale.

Mostra tutto

Nelle vicinanze

Trasporto pubblico Trasporto pubblico
Lavatoio
Lavatoio
2,1 Km
Trasporto pubblico
2,2 Km
stazione di Talamona
stazione di Talamona
1,2 Km
Supermercati Supermercati
Simply
1,5 Km
Negozi Negozi
Negozi
1,5 Km
Bar Bar
Bar
1,2 Km
Bar
3,0 Km
Ristoranti Ristoranti
Osaka
820 m
Crotto La Piazza
1,5 Km
El paso
1,5 Km
Albergo Ristorante Coppa
2,3 Km
Agriturismo Ortesida
2,5 Km
Mostra tutto

Caratteristiche

Rif.:
61171099
Piano:
Su più livelli di 2
Totale piani:
2
Condizionamento:
Assente
Ascensore:
No
Riscaldamento:
Centralizzato
Mostra tutto
Prezzo Prezzo
€ 450.000
Rata mutuo Rata mutuo
€ 2.089 / mese
Spese annue Spese annue
€ 0
Proponi il tuo prezzoProponi il tuo prezzo

Altre caratteristiche

Descrizione dei locali
Bagno Con Finestra

Classe Energetica

F
F
F
F
F
F
F
F
F
Anno di costruzione:
1996
Riscaldamento:
Centralizzato
Tipo impianto:
Ad aria
Tipo alimentazione:
Metano

Ti interessa visionare l'immobile?

Fissa un appuntamento  Fissa un appuntamento

Richiedi informazioni

Clicca su Leggi per aprire l'informativa
* Questi campi sono obbligatori

Calcola il tuo mutuo

Semplice e senza impegno
Anticipo

( % )
Mutuo

( % )

pochi semplici passi

inserisci i tuoi dati
Questionario completato
Grazie per aver richiesto un appuntamento senza impegno con un nostro Consulente del Credito e Assicurativo.

Hai inserito correttamente tutti i dati necessari e a breve riceverai una e-mail con un link da convalidare per inviare i tuoi dati.
Affiliato
Industriale Valtellina Srl
Via Statale, 23 23020 Poggiridenti (SO)

Il nostro staff


  • Andreasimona Biella
    Affiliata

  • Matteo Truppa
    Affiliato

  • Luca Moranda
    Affiliato
Via Statale, 23 23020 Poggiridenti (SO)
Zona: Poggiridenti
Mostra su mappa
Orari: Lunedì-Venerdì 09.00-12.30 /14.30-19.00. Sabato 09.00-12.30, pomeriggio e Domenica su appuntamento
Affiliato
Industriale Valtellina Srl
Via Statale, 23 23020 Poggiridenti (SO)

2026 Tecnocasa Franchising S.p.A. - P. IVA 08365160152 - Via Monte Bianco 60/A 20089 Rozzano (MI). Ogni agenzia ha un proprio titolare ed è autonoma. Privacy policy | Policy utilizzo | Cookie policy