Capannone in vendita

Talamona, Via Stelvio
€ 645.000
8 locali 8 locali
876 Mq 876 Mq
5 bagni 5 bagni

Capannone in vendita

Talamona, Via Stelvio

Descrizione annuncio

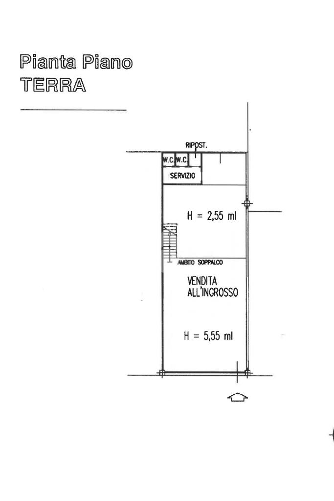
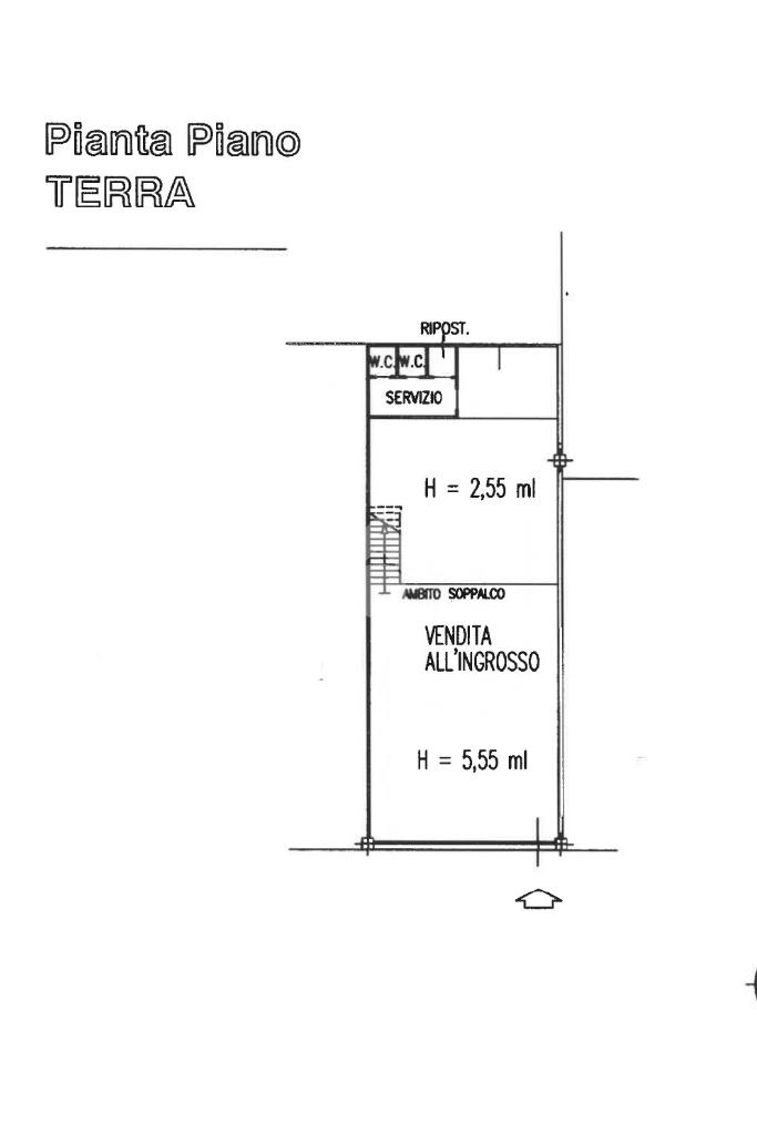
TALAMONA - VIA STELVIO 1568

A Talamona, in via Stelvio, sono disponibili due capannoni commerciali inseriti in un contesto dinamico e ben visibile, direttamente affacciato sulla strada principale.

Le soluzioni, completamente autonome e senza spese condominiali, misurano rispettivamente circa 609 mq e circa 266 mq, entrambe dotate di soppalco che amplia le possibilità di utilizzo degli spazi.

L’edificio, realizzato nel 1996, si presenta in una posizione strategica grazie all’ottima visibilità e alla presenza di parcheggi gratuiti nelle immediate vicinanze, rendendolo ideale per attività che necessitano di forte passaggio e praticità operativa.

Mostra tutto

Nelle vicinanze

Trasporto pubblico Trasporto pubblico
Lavatoio
Lavatoio
2,1 Km
Trasporto pubblico
2,2 Km
stazione di Talamona
stazione di Talamona
1,2 Km
Supermercati Supermercati
Simply
1,5 Km
Negozi Negozi
Negozi
1,5 Km
Bar Bar
Bar
1,2 Km
Bar
3,0 Km
Ristoranti Ristoranti
Osaka
840 m
Crotto La Piazza
1,4 Km
El paso
1,5 Km
Albergo Ristorante Coppa
2,3 Km
Agriturismo Ortesida
2,5 Km
Mostra tutto

Caratteristiche

Rif.:
61171083
Piano:
Su più livelli di 2
Totale piani:
2
Condizionamento:
Assente
Ascensore:
No
Riscaldamento:
Autonomo
Mostra tutto
Prezzo Prezzo
€ 645.000
Rata mutuo Rata mutuo
€ 2.994 / mese
Spese annue Spese annue
€ 0
Proponi il tuo prezzoProponi il tuo prezzo

Altre caratteristiche

Descrizione dei locali
Bagno Con Finestra

Classe Energetica

F
F
F
F
F
F
F
F
F
Anno di costruzione:
1996
Riscaldamento:
Autonomo
Tipo impianto:
Ad aria
Tipo alimentazione:
Metano

Ti interessa visionare l'immobile?

Fissa un appuntamento  Fissa un appuntamento

Richiedi informazioni

Clicca su Leggi per aprire l'informativa
* Questi campi sono obbligatori

Calcola il tuo mutuo

Semplice e senza impegno
Anticipo

( % )
Mutuo

( % )

pochi semplici passi

inserisci i tuoi dati
Questionario completato
Grazie per aver richiesto un appuntamento senza impegno con un nostro Consulente del Credito e Assicurativo.

Hai inserito correttamente tutti i dati necessari e a breve riceverai una e-mail con un link da convalidare per inviare i tuoi dati.
Affiliato
Industriale Valtellina Srl
Via Statale, 23 23020 Poggiridenti (SO)

Il nostro staff


  • Andreasimona Biella
    Affiliata

  • Matteo Truppa
    Affiliato

  • Luca Moranda
    Affiliato
Via Statale, 23 23020 Poggiridenti (SO)
Zona: Poggiridenti
Mostra su mappa
Orari: Lunedì-Venerdì 09.00-12.30 /14.30-19.00. Sabato 09.00-12.30, pomeriggio e Domenica su appuntamento
Affiliato
Industriale Valtellina Srl
Via Statale, 23 23020 Poggiridenti (SO)

2026 Tecnocasa Franchising S.p.A. - P. IVA 08365160152 - Via Monte Bianco 60/A 20089 Rozzano (MI). Ogni agenzia ha un proprio titolare ed è autonoma. Privacy policy | Policy utilizzo | Cookie policy