 
			 
				SONDRIO-VIA STELVIO
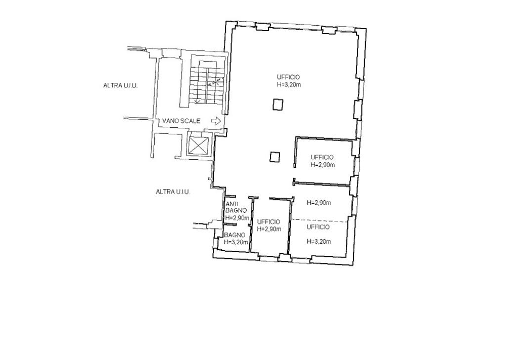
Nel cuore di Sondrio, proponiamo un AMPIO UFFICIO in vendita, perfetto per chi cerca uno spazio professionale versatile e ben posizionato. Con una superficie di 417 mq, l'immobile offre numerose possibilità di personalizzazione per adattarsi alle esigenze di diverse attività. Costruito nel 1990, l'edificio si presenta in buone condizioni e vanta una struttura solida e funzionale. Gli interni sono spaziosi e luminosi, grazie alle ampie finestre che garantiscono un'ottima illuminazione naturale.
L’ufficio è composto da due vani distinti, uno di circa 153 mq strutturato da un ampio locale con due uffici separati e un doppio servizio, mentre l’altro, attualmente affittato, è disposto su due livelli e copre una superficie di 264 mq a sua volta suddiviso in vari locali rimodellabili.
La posizione centrale assicura una facile accessibilità ai principali servizi cittadini, rendendo questo ufficio una scelta strategica per professionisti e aziende. La vicinanza a trasporti pubblici e parcheggi aggiunge ulteriore comodità per dipendenti e clienti.
A completare la soluzione 15 posti auto coperti.
Un'opportunità interessante per chi desidera investire in un immobile commerciale nel cuore pulsante di Sondrio.
Ti interessa visionare l'immobile?