 
			 
				SONDRIO - VIA TREMOGGE
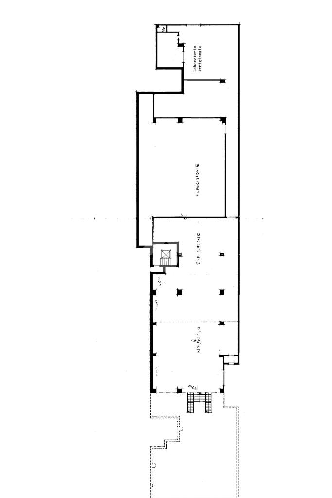
Nel pieno centro di Sondrio, in posizione di prestigio per visibilità e fruibilità dell'immobile, proponiamo in vendita LOCALE COMMERCIALE di ampia metratura, disposto su due livelli, collegati tra loro da scala interna.
La soluzione, che misura circa 1.350 mq complessivi, è composta da un ampio negozio al piano terra completo di uffici. Lo stesso è collegato ad un ulteriore zona a destinazione commerciale al piano seminterrato raggiungibile mediante l'ampia scala interna.
Sul retro del fabbricato, accessibile tramite ingresso indipendente, è presente un vano ad uso magazzino/autorimessa di circa 300 mq.
Completa la soluzione il doppio accesso per carico/scarico delle merci tramite agevole rampa.
Ti interessa visionare l'immobile?