 
			 
				PIATEDA, VIA FIORENZA 28:
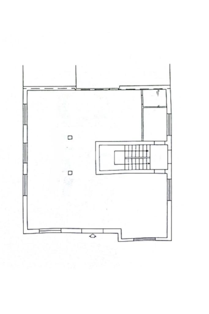
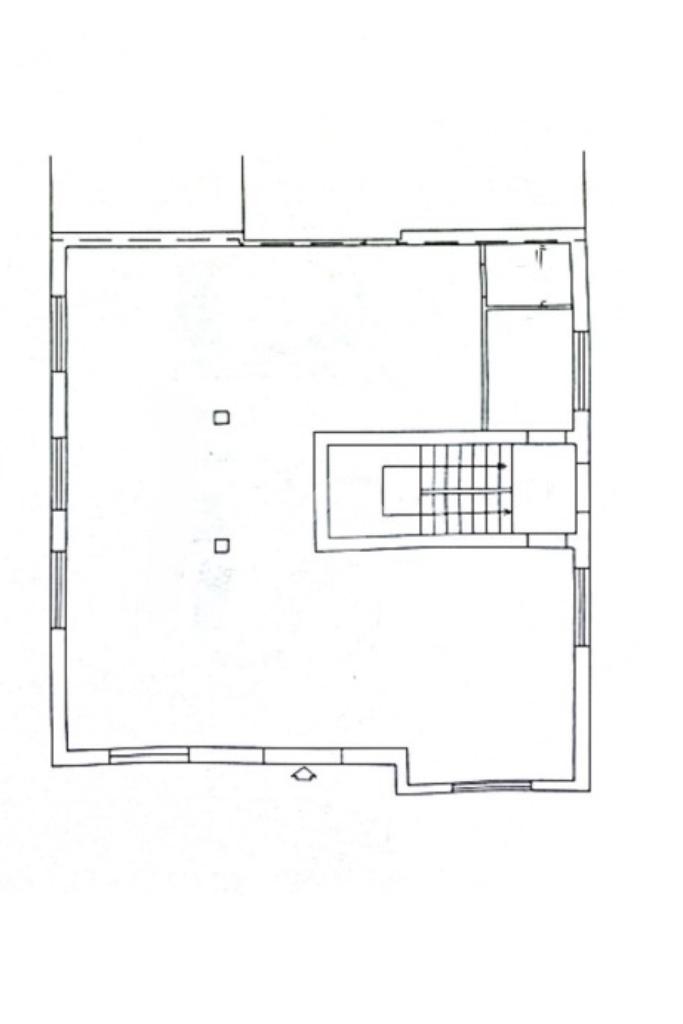
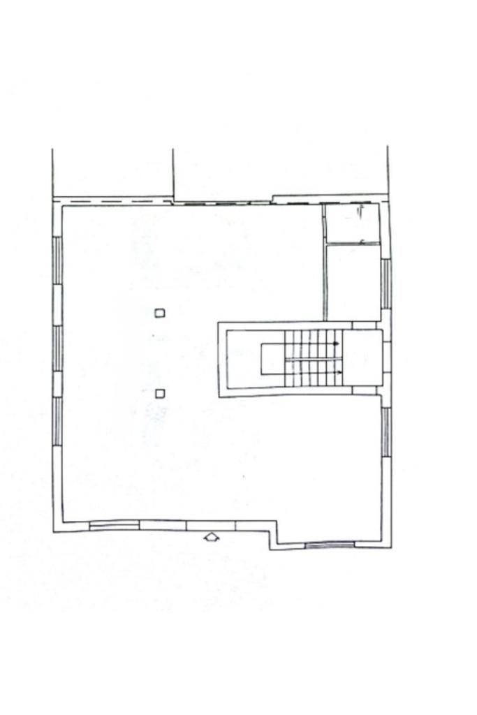
In vendita locale commerciale di circa 135 mq, attualmente locato e già a reddito.
La proprietà si trova lungo la strada di maggiore percorrenza, offrendo un’eccellente visibilità grazie alle ampie vetrate fronte strada.
Internamente si presenta come un open space luminoso e versatile, completato da un bagno privato.
All’esterno, un ampio piazzale con parcheggi riservati garantisce praticità e comfort.
Una soluzione ideale per chi desidera investire in un immobile ben posizionato, funzionale e già produttivo.
 Immobile valutato con T·Valuta
Immobile valutato con T·Valuta
								Prezzo ridotto di €1 (10%%)
Ti interessa visionare l'immobile?