Magazzino in vendita

Montagna In Valtellina, Via paini
€ 150.000
3 locali 3 locali
384 Mq 384 Mq
1 bagno 1 bagno

Magazzino in vendita

Montagna In Valtellina, Via paini

Descrizione annuncio

MONTAGNA IN VALTELLINA - VIA PAINI 191/A

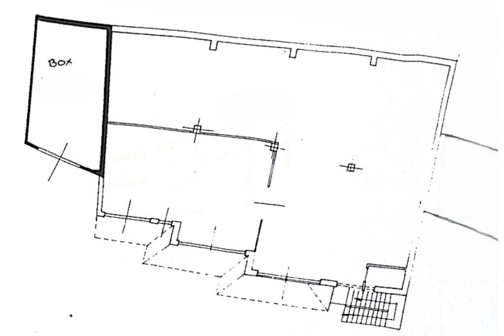
A Montagna in Valtellina, in un contesto facilmente accessibile, proponiamo in vendita un laboratorio di 384 mq completamente autonomo e privo di spese condominiali.

L’immobile è composto da tre locali separati ma collegati internamente tra loro, dotati di quattro accessi carrabili che garantiscono praticità e versatilità d’uso.

È presente anche un servizio igienico, elemento essenziale per attività operative.

La conformazione degli spazi rende la soluzione particolarmente adatta come magazzino o come laboratorio per attività artigianali, offrendo funzionalità e comodità in una posizione strategica.

Mostra tutto

Nelle vicinanze

Trasporto pubblico Trasporto pubblico
Sondrio
Sondrio
2,5 Km
Cà Cupatt (Montagna in V.)
Cà Cupatt (Montagna in V.)
160 m
Montagna in V. Centro
Montagna in V. Centro
310 m
Ricariche auto elettriche Ricariche auto elettriche
Sondrio Techauto | EnelX/ALD
1,4 Km
Parcheggio Cimitero
1,5 Km
BeCharge ESFE - Ente Paritetico per la Sicurezza e la Formazione dell'Edilizia
2,5 Km
A2A Sondrio Via Caimi
2,5 Km
Parcheggio Interrato di Piazza Garibaldi
2,5 Km
Scuole Scuole
Scuole Elementari
340 m
Scuole
340 m
Scuola dell'infanzia "Elisa Paini - Credaro"
420 m
Scuola Elementare Al Piano
1,3 Km
L’Istituto Salesiano “Don Bosco”
1,8 Km
Farmacia Farmacia
Dott. Giordano Gusmeroli
1,3 Km
Parafarmacia D.ssa Gianoli
1,8 Km
Farmacia dr Biglioli
2,2 Km
Dott. Quadro
2,3 Km
Farmacia
2,4 Km
Ospedali Ospedali
Ospedali
1,7 Km
Supermercati Supermercati
Conad
1,8 Km
Crai
1,9 Km
Al Baitel
2,1 Km
Natur House
2,1 Km
Punto Simply Market
2,3 Km
Negozi Negozi
Fiorelli Sport
1,8 Km
Liod
2,0 Km
La Bottega Del Dolce
2,0 Km
Panificio Rigamonti
2,0 Km
Via Affari
2,0 Km
Bar Bar
Bar Millemiglia
1,2 Km
Mai Dire Bar
1,4 Km
Bar
2,0 Km
Caffè Piazzi
2,0 Km
Bar Genius
2,1 Km
Ristoranti Ristoranti
Ristorante dei Castelli
550 m
Ristorante San Giorgio
590 m
Da Frenck
1,2 Km
Ristorante Trippi Grumello
1,3 Km
Agriturismo "S.Maria"
1,5 Km
Mostra tutto

Caratteristiche

Rif.:
61171490
Piano:
Terra di 3
Totale piani:
3
Condizionamento:
Assente
Ascensore:
No
Riscaldamento:
Autonomo
Mostra tutto
Prezzo Prezzo
€ 150.000
Rata mutuo Rata mutuo
€ 696 / mese
Spese annue Spese annue
€ 0
Proponi il tuo prezzoProponi il tuo prezzo

Altre caratteristiche

Descrizione dei locali
Bagno antibagno

Classe Energetica

G
G
G
G
G
G
G
G
G
EP globale non rinnovabile:
130.86 kW h/m² anno
EP globale rinnovabile:
4.54 kW h/m² anno
EP invernale del fabbricato:
EP estiva del fabbricato:
Anno di costruzione:
1990
Riscaldamento:
Autonomo
Tipo impianto:
Ad aria
Tipo alimentazione:
Metano

Ti interessa visionare l'immobile?

Fissa un appuntamento  Fissa un appuntamento

Richiedi informazioni

Clicca su Leggi per aprire l'informativa
* Questi campi sono obbligatori

Calcola il tuo mutuo

Semplice e senza impegno
Anticipo

( % )
Mutuo

( % )

pochi semplici passi

inserisci i tuoi dati
Questionario completato
Grazie per aver richiesto un appuntamento senza impegno con un nostro Consulente del Credito e Assicurativo.

Hai inserito correttamente tutti i dati necessari e a breve riceverai una e-mail con un link da convalidare per inviare i tuoi dati.
Affiliato
Industriale Valtellina Srl
Via Statale, 23 23020 Poggiridenti (SO)

Il nostro staff


  • Andreasimona Biella
    Affiliata

  • Matteo Truppa
    Affiliato

  • Luca Moranda
    Affiliato
Via Statale, 23 23020 Poggiridenti (SO)
Zona: Poggiridenti
Mostra su mappa
Orari: Lunedì-Venerdì 09.00-12.30 /14.30-19.00. Sabato 09.00-12.30, pomeriggio e Domenica su appuntamento
Affiliato
Industriale Valtellina Srl
Via Statale, 23 23020 Poggiridenti (SO)

2026 Tecnocasa Franchising S.p.A. - P. IVA 08365160152 - Via Monte Bianco 60/A 20089 Rozzano (MI). Ogni agenzia ha un proprio titolare ed è autonoma. Privacy policy | Policy utilizzo | Cookie policy